IC-Logo
logo

Real InterContinental Lima Miraflores

Tu Eventos en el Hotel Real InterContinental Lima Miraflores

Reuniones y Eventos Inolvidables

Celebre eventos en nuestro hotel en Miraflores con 11 espacios para reuniones de alta tecnología con capacidad para 475 huéspedes. Nuestras lugares son ideales para conferencias corporativas, banquetes y bodas elegantes, con exquisitos servicios de catering y expertos en planificación.

 
salon-real

Empieza a planificar tus reuniones, celebraciones o eventos aquí

Coméntanos sobre tu evento y te llamaremos para organizarlo juntos

11

Salones de eventos

827 m²

Espacios para eventos de hasta

400

Espacio de mayor capacidad

Sofisticados espacios para eventos en la mejor zona de Lima

Celebre reuniones excepcionales en nuestros 11 sofisticados lugares diseñados para inspirar. Desde el elegante Real Ballroom hasta las elegantes salas de juntas, disfrute de tecnología de punta, planificación experta y catering de clase mundial. Ya sea una reunión de alto nivel o una boda lujosa, nuestros espacios preparan el escenario para momentos inolvidables y colaboraciones exitosas.

Sin-título-1-Recuperado

El mejor espacio de fondo perfecto para su día especial

Celebre en el corazón de Lima Miraflores con impresionantes vistas al mar, lugares elegantes y un servicio impecable. Desde ceremonias íntimas hasta grandes recepciones, crearemos un día tan atemporal y hermoso como su amor.

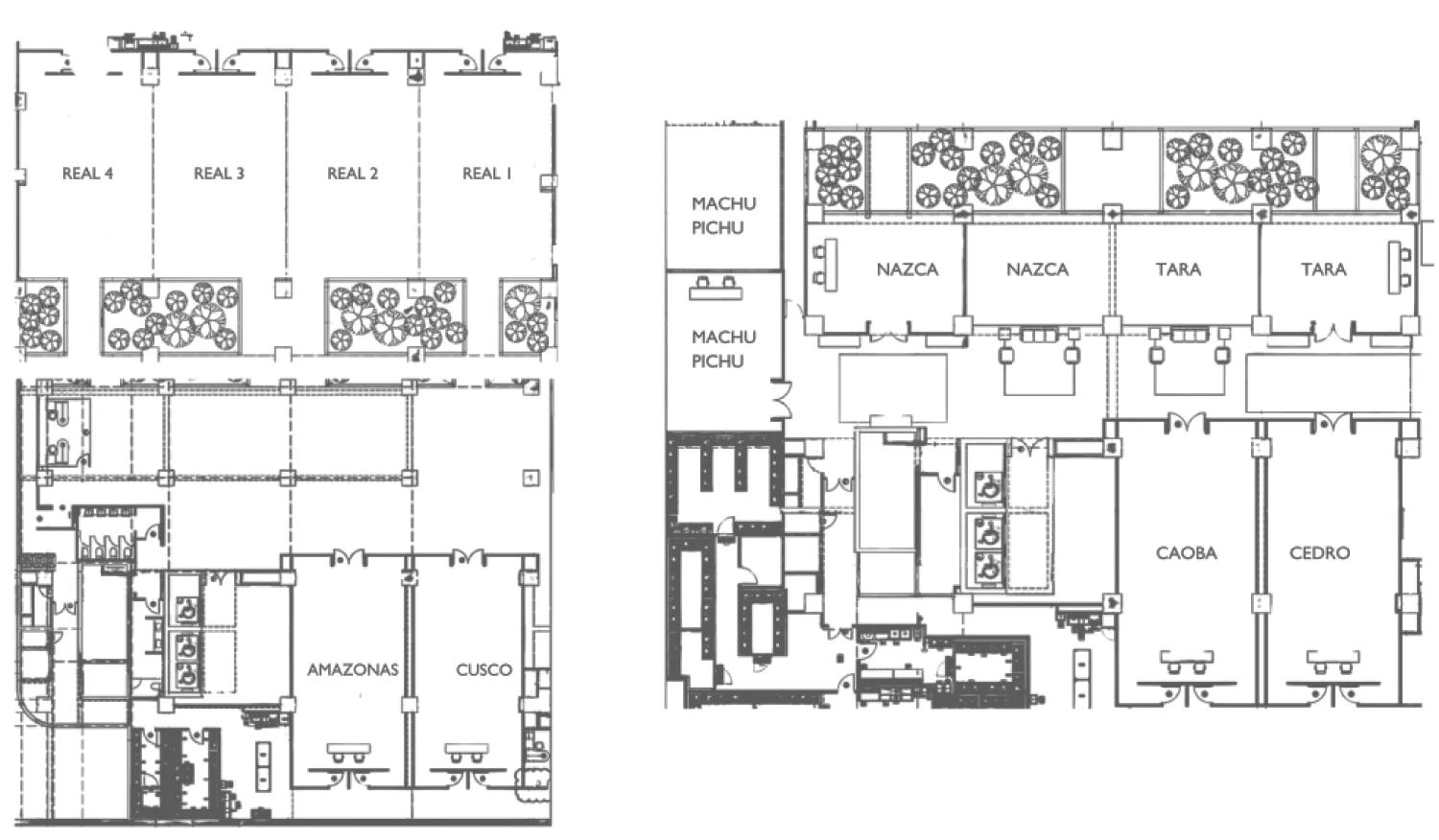
Planos, capacidad y equipos para tu evento en el Hotel Real Intercontinental Lima

Nombre del salón Auditorio Banquetes Cabaret U Directorio Escuela Cocktail O Shape Altura (m) Largo (m) Ancho (m) Tamaño (m²)
Caoba 907048342630100362.6513.917.34104
Cedro 907048342630100362.6513.917.04100
Tara 48403221181550242.606.318.2048
Nazca 48403221181550242.606.318.3550
Machu Pichu 48403222182150262.656.188.4550
Amazonas 907048342630100362.6513.917.34104
Cusco 907048342630100362.6513.917.04100
Real 1 80604024182490275.0012.158.0698
Real 2 80604024182490275.0012.158.1499
Real 3 80604024182490275.0012.158.1499
Real 4 80604024182490275.0012.158.31101
Real 3422601608675189400985.0012.1532.67397
bonvoy-banquet-33747_Square

Banquete

Se suele usar para comidas y sesiones con un número reducido de asistentes. Una mesa redonda de metro y medio tiene capacidad para acomodar 8 personas. Una mesa redonda de dos metros tiene capacidad para acomodar 10 personas.

bonvoy-conference-and-hollow-40456_Square

Conferencia y cuadrado hueco

Ideal para debates interactivos y sesiones de toma de notas para menos de 25 personas. Muchos de nuestros hoteles disponen de elegantes salas de juntas provistas con tablero, pizarra de corcho, rotafolio y todos los elementos audiovisuales necesarios. Capacidad: 10 a 20 asistentes.

bonvoy-e-u-t-shape-32935_Square

Disposición en forma de E, en forma de U y en forma de T

Adecuada para grupos de menos de 40 personas. Son perfectas para la interacción con un líder sentado en la cabecera de la sala. Generalmente la mejor disposición del equipo audiovisual es en el extremo abierto de los asientos.

bonvoy-theater-15044_Square

Teatro

Ideal para sesiones extensas y conferencias cortas que no requieran tomar muchas notas. Esta es una disposición conveniente para usar antes de dividir a los asistentes en grupos de discusión o de juego de roles porque las sillas se pueden mover.

bonvoy-reception-10460_Square

Recepción

Eventos sociales de pie en donde se sirven bebidas y comidas ligeras. Las comidas pueden servirse en pequeñas mesas de bufet o ser ofrecidas por los meseros. Puede ser la antesala a una comida.

bonvoy-schoolroom-20857_Square

Sala o aula escolar

La disposición ideal para conferencias de tamaño mediano y grande. Requiere de una sala relativamente grande. Las mesas ofrecen a los asistentes un espacio para extender el material y tomar notas.

mesa redondas y ovaladas

Mesas redondas y ovaladas

Se suele usar para comidas y sesiones con un número reducido de asistentes. Una mesa redonda de metro y medio tiene capacidad para acomodar 8 personas. Una mesa redonda de dos metros tiene capacidad para acomodar 10 personas.

Preguntas frecuentes

InterContinental Real Lima Miraflores cuenta con 11 salones de eventos.

El salón de eventos con mayor capacidad es el The Real Room. Tiene una capacidad de 475.

Sí, InterContinental Real Lima Miraflores ofrece servicios de bodas.

Para reservar una reunión o evento en InterContinental Real Lima Miraflores

Crea tu solicitud de presupuesto

Tu solicitud de presupuesto nos permite proporcionarte una estimación del espacio, los servicios y los precios para tu evento.




Agregar archivos adjuntos *Opcional


Por favor, adjunta cualquier otra información que te gustaría que supiéramos sobre tu evento Tipos de archivo aceptados: .pdf, .jpg, .Txt .gif, .tif, .png .doc. .xls, o .ppt

Carga máxima de archivos: 3 MB or 2 files




Número de teléfono y correo electrónico





Dirección






Información adicional


Consentimiento para el Tratamiento de Datos Personales y Uso de Cookies

Este sitio utiliza cookies para personalizar contenido, ofrecer funciones sociales y analizar el tráfico. La información se comparte con nuestros socios y, al continuar navegando, aceptas nuestra Política de Privacidad.